科技与人文交织的未来智慧产业园|汇达丰电气科技产业园景观设计
项目位于珠海市珠海香洲区汇达丰电气科技产业园,紧邻青松路和南中路。北靠凤凰山,生态自然资源丰富,周边电子科技园、产业园、软件园环绕,有四通八达的城市交通立体网络,交通物流便利。

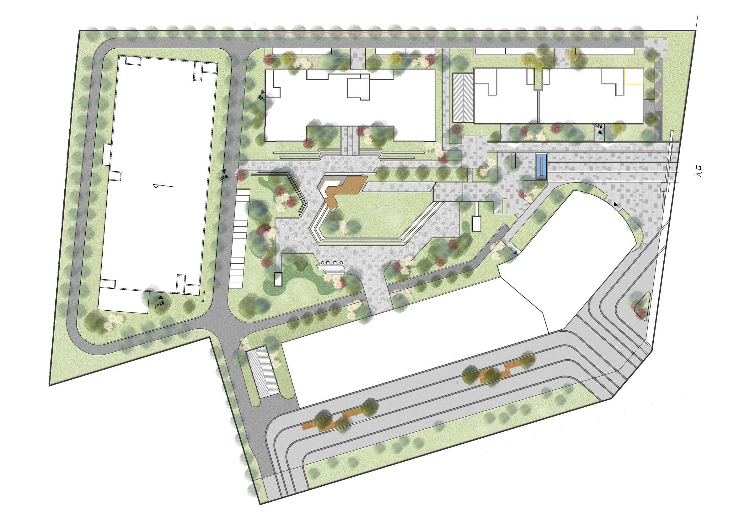
▲汇达丰电气科技产业园平面图
作为珠海市服务南方电网的企业,汇达丰电气立足珠海发展战略,打造集低碳都市、智慧新城、科技研发、青年创新于一体的综合性开放园区。目前,汇丰达电气与各电力行业协会会员共商合作,为珠海打造粤港澳大湾区重要门户枢纽、珠江口西岸核心城市建设高效智能电网贡献力量。
作为文化与产业的集中交流地,景观设计以“创新、创意”为主题进行延展。首先,在分析受众群体的行为习惯与性格特征基础上,赋予丰富的文化内涵,满足不同文化背景的办公人群。其次,结合人流及行为的规律,最大限度打通场地脉络,将内外庭院、内外建筑、内外空间充分融合。最终,设计为使用者提供了多元的人性化场所及丰富的景观层次,满足企业在办公之外的户外交流所需,酝酿出独特的6686体育,实现从创新孵化到展示体验的全程闭环,规划产业和人才育成等多功能形态的交互统一。

▲产业园入口水景图

▲汇达丰产业园入口水景效果图
根据入口广场的尺度,结合项目LOGO设计了一处简洁大气的水景。水景以镜面反射出周围的蓝天绿树,而金色logo的不锈钢透露出这个场地活跃的色彩。池底的灯光经过精心的设计,在夜间呈现出星空般璀璨的色彩。

▲产业园中庭图片

▲汇达丰产业园中庭效果图
为了提升中庭场地的使用密度和强度,设计对原始空间做了细心的处理,让场地更舒适。阳光大草坪和草阶的设计,将中庭空间完全打开,与周边联通。通过对园林小品的艺术化设计以及软景的精心处理,让这个空间也充满了行走的乐趣。

▲广场效果图
在场地置入文化记忆。党文化景墙合理设置于绿篱的转角处设置景墙,让其本身就成为一处视觉记忆和停留空间,同时,设计特别重视开放空间的交流体验,便捷的交通,舒适的停留,以及独具特色的树池坐凳,让整个行走变得趣味盎然。

▲黑白灰色调铺装

▲绿化图

▲汇达丰产业园中庭鸟瞰图
为了让整个园区的交通更连贯舒适,车位合理分布于周边,不影响中庭空间交流体验,停车位简洁的黑灰调基础与中庭的色彩性格相交融,形成了一个形式统一,功能多元,内蕴丰富的场地形象,同时使得各个建筑之间的交通联结也更为流畅和紧密。
在本项目中,设计师将艺术、休闲融进商务,本着最大限度打通场地脉络,融合建筑内外的空间,充分理解国际化的行为习惯及审美偏好,全面提升空间活力的原则,设计为园区展现了一个时尚品质的项目形象,为使用者提供了一个多元精彩的交流空间,也为城市增加了一个充满活力的场所。
相关推荐
科技与人文交织的未来智慧产业园|汇达丰电气科技产业园景观设计
项目位于珠海市珠海香洲区汇达丰电气科技产业园,紧邻青松路和南中路。北靠凤凰山,生态自然资源丰...【详细】

